Цена, руб:
9 400 000 руб.
Первоначальный взнос, руб. или %Первоначальный взнос, руб. либо %
%
руб
Срок кредитования, лет
Укажите ваш возраст
лет
Абсолют банк
Аверс банк
ВТБ
Сбербанк
УБРиР
Татсоцбанк
Предоставленная информация является справочной, расчет производится приблизительно.
Прекрасная возможность купить квартиру 
Прocтopную и свeтлую 3-х.кoмнaтную в Кировском районе г. Казани, в ЖK Cалават Купepe по улице Мустая Карима дом 3. Квартира находится на 2 этаже 18-этажного монолитного-кирпичного дома 2020 года постройки.
Еcли вы плaнируетe пеpeезд в бoлeе кoмфортнoe жилье для вашей сeмьи, тo этот вapиaнт для вас.
У дома выгодное месторасположение – рядом два детских сада, гимназия №189, поликлиника, магазины и остановка общественного транспорта.
На придомовой территории обустроена современная детская площадка. Большая парковка. Рядом превосходный, эстетичный парк «Салават Купере», где можно проводить время с семьей.
 
ПРЕИМУЩЕСТВА КВАРТИРЫ:
- квартира новая, никто не жил
- чистовая отделка
 
- комфортная, удобная планировка
-кухня с выходом на лоджию
- большие спальные комнаты на разные стороны, с выходом на лоджию
- на окнах пластиковый стеклопакет, установлены современные радиаторы, счетчики на свет, воду
- в доме два лифта (грузовой и пассажирский) сквозной подъезд 
- небольшие коммунальные платежи
- чистый ухоженный подъезд, доброжелательные соседи

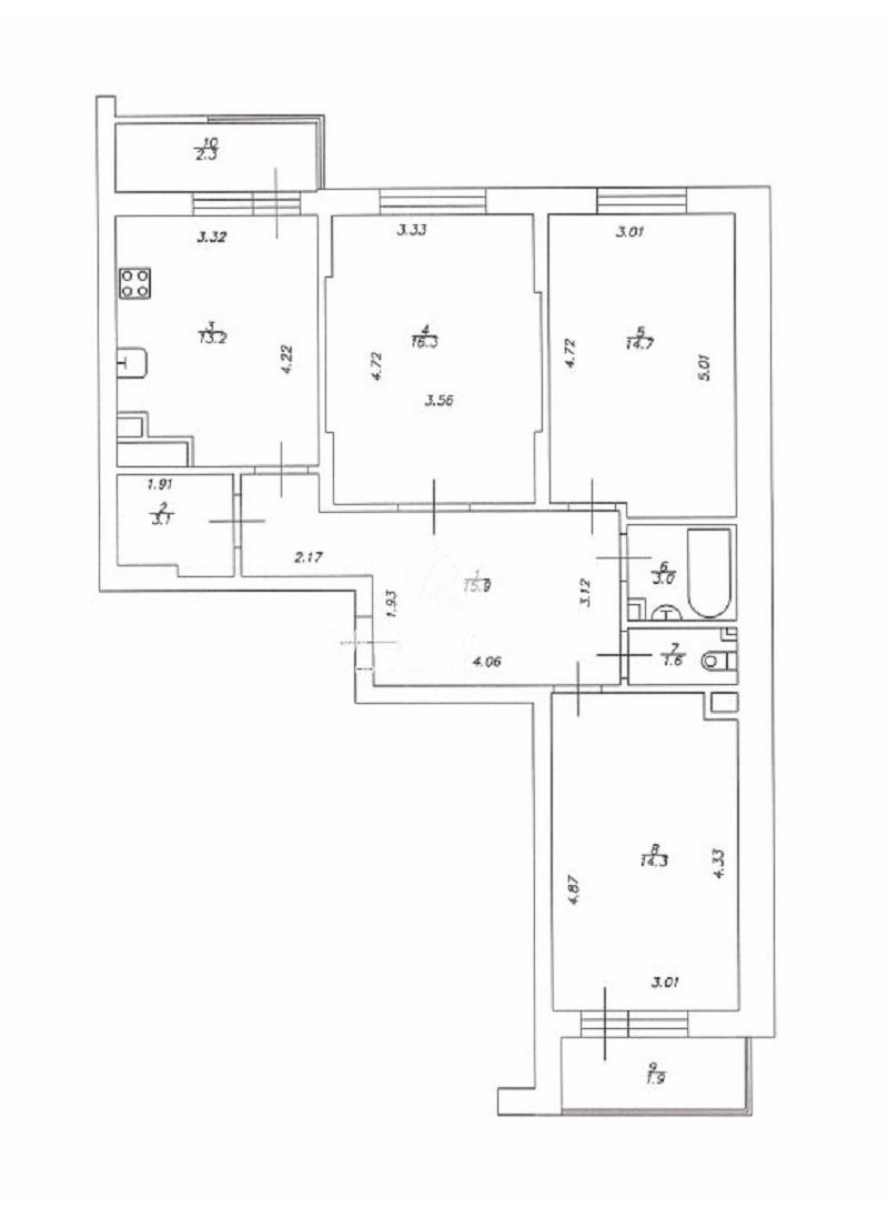
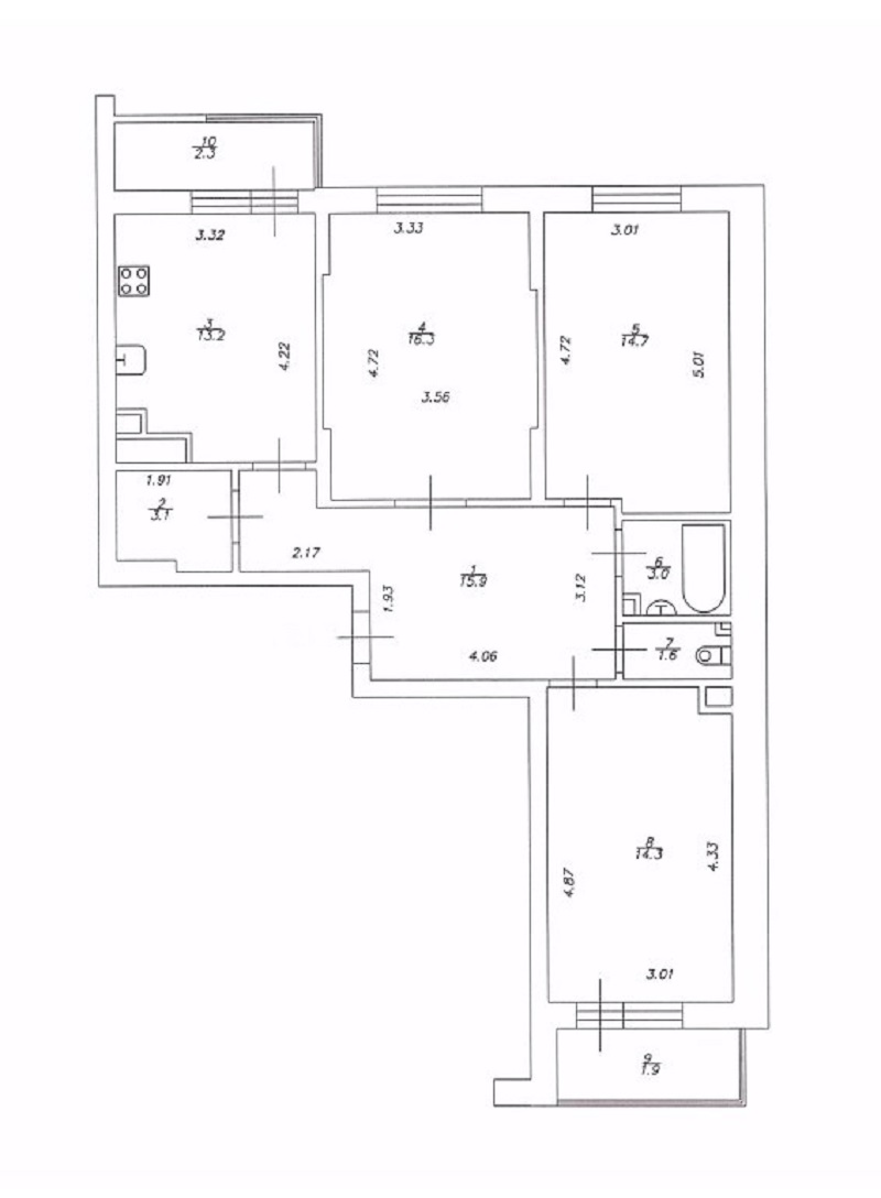
ПЛАНИРОВКА:
- общая площадь  86,3 кв.м
- кухня 13 кв.м
- комнаты 16,3 кв.м 14,7 кв.м и 14,4 кв.м 
- сан. узел раздельный – 3,05 кв. м, и 1,5 кв. м.
- гардеробная 3,03 кв.м
- коридор 15,5 кв.м
- две лоджии 4,8 кв.м и 4,2 кв.м
 
ИНФРАСТРУКТУРА РАЙОНА: 
- удобное расположение дома
- в шаговой доступности гимназия, лицей, детские сады, развивашки для детей
- магазины, поликлиники (детская и взрослая), бассейн, парикмахерская, аптеки, недалеко супермаркеты, ТЦ «Радужный» с кинотеатром, множество кафе
- красивый современный парк

​​​​​​​Идеальное место для жизни большой семьи с детьми. Звоните! Не упустите возможность стать владельцем этой замечательной квартиры, где вы сможете создать уютный дом для себя и своих близких, наслаждаясь комфортом!
Рядом: Юсупова, Абзаловой, Шакирова, Гареева, Фаттаха, Арсланова, Гайсина.
Продолжая использовать наш сайт, вы даете согласие на обработку файлов cookie, пользовательских данных (сведения о местоположении; тип и версия ОС; тип и версия Браузера; тип устройства и разрешение его экрана; источник откуда пришел на сайт пользователь; с какого сайта или по какой рекламе; язык ОС и Браузера; какие страницы открывает и на какие кнопки нажимает пользователь; ip-адрес) в целях функционирования сайта, проведения ретаргетинга и проведения статистических исследований и обзоров. Если вы не хотите, чтобы ваши данные обрабатывались, покиньте сайт.
OK
Яндекс.Метрика