Цена, руб:
240 000 руб.
Первоначальный взнос, руб. или %Первоначальный взнос, руб. либо %
%
руб
Срок кредитования, лет
Укажите ваш возраст
лет
Абсолют банк
Аверс банк
ВТБ
Сбербанк
УБРиР
Татсоцбанк
Предоставленная информация является справочной, расчет производится приблизительно.
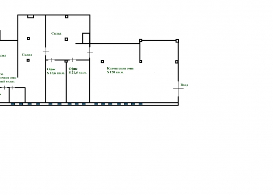
Сдается универсальное помещение на 1-м этаже в Советском районе по ул Родины д.7.

Общая площадь 358,5 кв.м.

Площадь включает в себя:
- офисное помещение 160 кв.м. 
- теплый склад 123 кв.м.
- холодный склад 75 кв.м.
- разгрузо-погрузочная зона, кран -балка на 3,5т .
- санузел
- кухонная зона

Офисное помещение можно использовать как теплый склад.
​​​​​​​
Здание оснащено 2мя пассажирскими и грузовым лифтом.
Здание охраняется, имеется закрытая и открытая парковка.

Помещение имеет 2 входных зоны.

Удобная транспортная развязка, остановка общественного транспорта находится перед зданием, Станция метро "Горки" в 15 минутах ходьбы.
Ближайшие улицы: Победы проспект, Бухарская, Рихарда Зорге, Аделя Кутуя.

Продолжая использовать наш сайт, вы даете согласие на обработку файлов cookie, пользовательских данных (сведения о местоположении; тип и версия ОС; тип и версия Браузера; тип устройства и разрешение его экрана; источник откуда пришел на сайт пользователь; с какого сайта или по какой рекламе; язык ОС и Браузера; какие страницы открывает и на какие кнопки нажимает пользователь; ip-адрес) в целях функционирования сайта, проведения ретаргетинга и проведения статистических исследований и обзоров. Если вы не хотите, чтобы ваши данные обрабатывались, покиньте сайт.
OK
Яндекс.Метрика